Obowiązujące plany zagospodarowania przestrzennego


 

Wykaz dokumentów dotyczących miejscowych planów zagospodarowania przestrzennego Gminy Raba Wyżna.

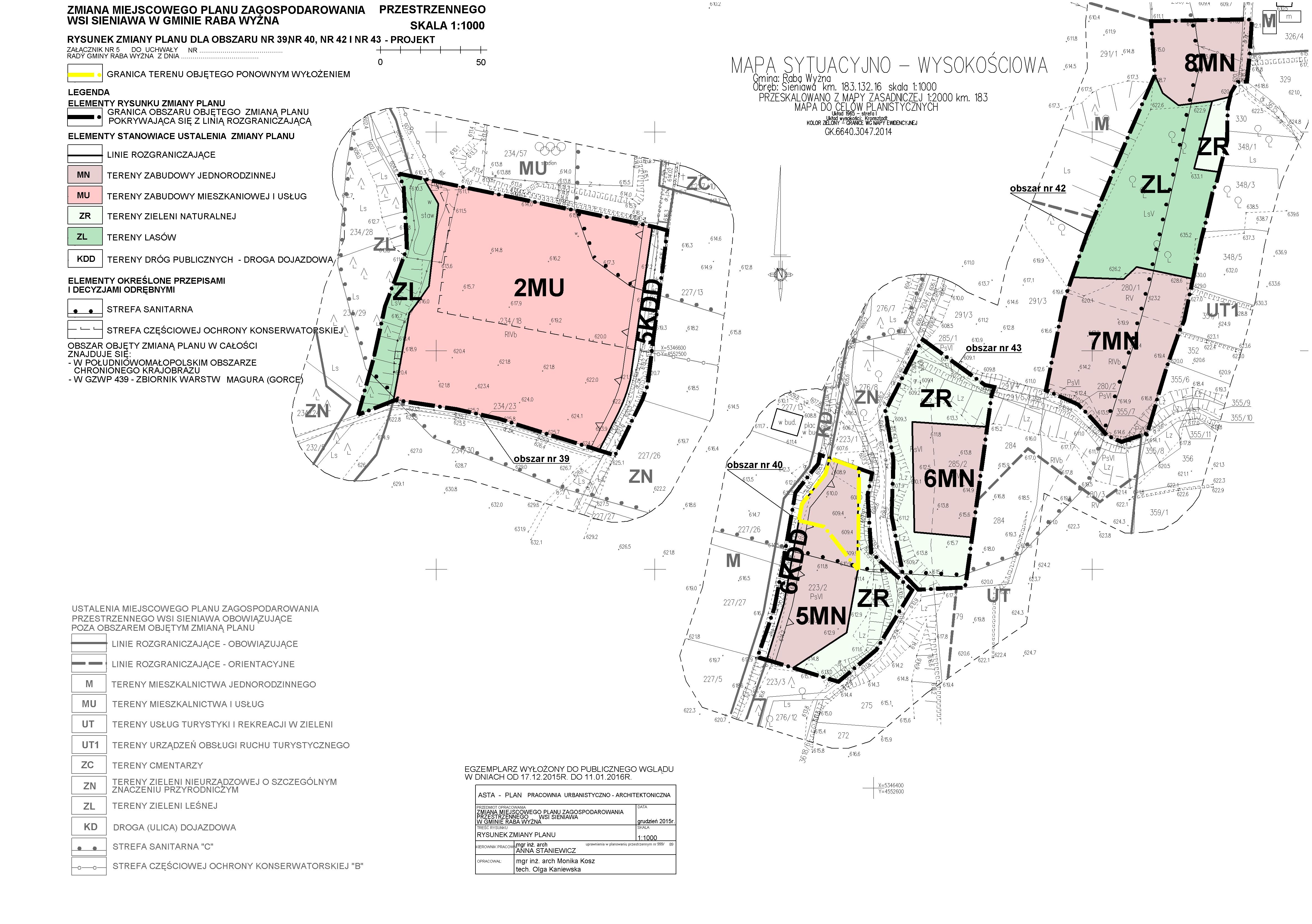
Załącznik graficzny projektu zmiany planu oznaczonej granicami ponownego wyłożenia, która obejmuje we wsi Sieniawa poszerzenie terenu 5 MN w obszarze nr 40, zobrazowany na załaczniku nr 5 do uchwały

16‑12‑2015 12:44:12
Liczba pobrań
Trwa wczytywanie metryki. Proszę czekać.

Tekst zmiany miejscowego planu zagospodarowania przestrzennego wsi Sieniawa w gminie Raba Wyżna

16‑12‑2015 12:41:39
Liczba pobrań
Trwa wczytywanie metryki. Proszę czekać.

Zmiana miejscowego planu zagospodarowania przestrzennego wsi Sieniawa w Gminie Raba Wyżna wraz z prognozą oddziaływania na środowisko

16‑12‑2015 12:36:30
Trwa wczytywanie metryki. Proszę czekać.

Rysunek prognozy oddziaływania na środowisko w zakresie zmian podlegających ponownemu wyłożeniu we wsi Raba Wyżna

16‑12‑2015 12:32:13
Liczba pobrań
Trwa wczytywanie metryki. Proszę czekać.

Tekst prognozy oddziaływania na środowisko do projektu zmiany miejscowego planu zagospodarowania przestrzennego wsi Raba Wyżna

16‑12‑2015 12:28:54
Liczba pobrań
Trwa wczytywanie metryki. Proszę czekać.

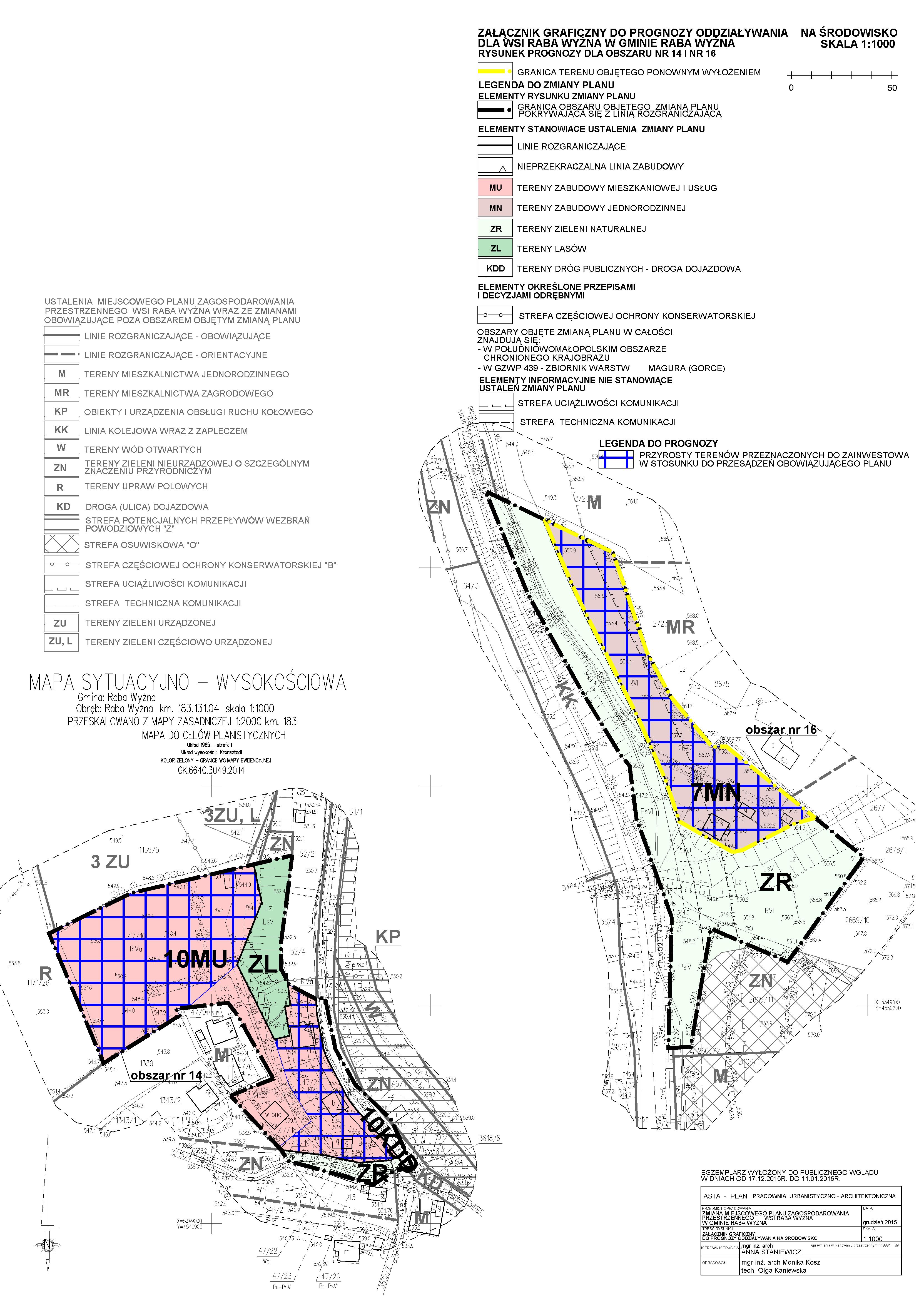
Załacznik graficzny projektu zmiany planu oznaczonej granicami ponownego wyłożenia, który obejumuje we wsi Raba Wyżna poszerzonie terenu 7MN w obszarze nr 16, zobrazowany na załaczniku nr 12 do uchwały

16‑12‑2015 12:22:17
Liczba pobrań
Trwa wczytywanie metryki. Proszę czekać.

Tekst zmiany planu zagospodarowania przestrzennego wsi Raba Wyżna w gminie Raba Wyżna

16‑12‑2015 12:00:19
Liczba pobrań
Trwa wczytywanie metryki. Proszę czekać.

Zmiana miejscowego planu zagospodarowania przestrzennego wsi Raba Wyżna w gminie Raba Wyżna wraz z prognozą oddziaływania na środowisko

16‑12‑2015 11:57:47
Trwa wczytywanie metryki. Proszę czekać.

Ponowne wyłożenie projektów zmian miejscowych planów zagospodarowania przestrzennego wsi Raba Wyżna, Sieniawa, Skawa wraz z prognozami oddziaływania na środowiskow dniach od 17.12.2015r. do 11.01.2016r.

16‑12‑2015 11:44:21
Trwa wczytywanie metryki. Proszę czekać.

Ogłoszenie Wójta Gminy Raba Wyżna o ponownym wyłożeniu do publicznego wglądu projektów zmiany miejscowych planów zagospodarowania przestrzennego wsi Raba Wyżna, Sieniawa i Skawa w Gminie Raba Wyżna

08‑12‑2015 11:55:05
Liczba pobrań
Trwa wczytywanie metryki. Proszę czekać.
Liczba komunikatów archiwalnych: 161 Numer strony: 1 .. 6  7  8  9  10  .. 17
Informacja wytworzona przez:
Lucyna Kosek , w dniu:  08‑12‑2010 11:08:00
Informacja wprowadzona do BIP przez:
Robert Migiel
email: sekretarz@rabawyzna.pl tel.:(18) 2691269 fax: (18) 2691251
, w dniu:  08‑12‑2010 11:08:00
Data ostatniej aktualizacji:
15‑11‑2023 11:48:26
Ilość wyświetleń:
Trwa wczytywanie
Wczytywanie danych...
Lp. Rodzaj zmiany Data aktualizacji Wytworzono przez Wprowadzono przez Akcje
Wczytaj kolejne wersje artykułu
Pokaż archiwalne komunikaty publikowane na tej stronie